Thiết Kế Kiến Trúc Nhà Phố Tại Hoài Đức
Mẫu thiết kế kiến trúc nhà phố tại Hoài Đức là một trong những mẫu thiết kế kiến trúc nhà phố được ưa chuộng nhất hiện nay vì giữ nét thẩm mỹ và công năng của một ngôi nhà phố hiện đại. Mẫu thiết kế kiến trúc nhà phố tại Hoài Đức, được kiến trúc sư noithatMBhome.vn tiếp nhận và lên dự án thiết kế kiến trúc theo mô hình 3D.
Với mảnh đất có diện tích 117m2 là nơi lý tưởng để Anh Trường có thể xây dựng thiết kế kiến trúc 5 tầng theo phong cách hiện đại. Từng không gian trong căn nhà được bố trí hợp lý thể hiện rõ trên những bản vẽ được chia sẻ khá đầy đủ, với thiết kế kiến trúc nhà phố 5 tầng hiện đại, đơn giản, đường nét gọn, thanh mảnh ít cầu kỳ cùng cách phối màu trung tính sang trọng giúp ngôi nhà mang cái duyên mỏng riêng thoát ra khỏi ấn tượng đầy nặng nề của những ngôi nhà lô phố bê tông cốt thép liền vách, chung tường thường thấy.

Thiết kế kiến trúc nhà ống Tại Hoài Đức
Mẫu thiết kế kiến trúc nhà phố hiện đại này sử dụng gam trắng sáng tinh tế ốp gạch thẻ nâu gỗ ấm áp tạo diện mạo trẻ khỏe khoắn, độc đáo, lạ mắt phối kết hợp kính hiện đại ô kính lớn mang nắng ấm vào không gian nội thất và không giới hạn tầm nhìn tạo nên bức tranh độc hoàn thiện

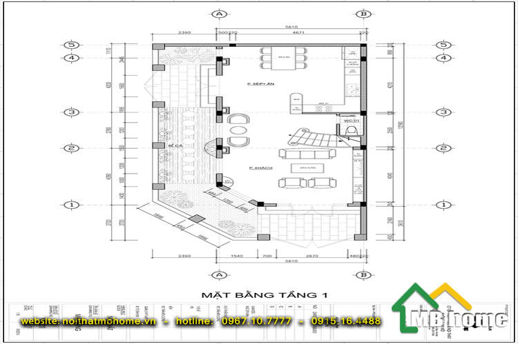
Phối cảnh 3D Mặt bằng tầng 1 – Thiết Kế Kiến Trúc Nhà Phố Tại Hoài Đức
Thiết kế kiến trúc nhà phố tại Hoài Đức cho mặt bằng tầng 1 kiến trúc sư noithatMbhome.vn thiết kế phòng khách vào thẳng ngôi nhà, tiếp theo là cầu thang, phòng vệ sinh wc sát phía sau chân cầu thang nhằm tối ưu diện tích. Tiếp theo là không gian nội thất phòng bếp ăn đẹp được thiết kế hiện đại thông thoáng view ra ngoài vườn rất tiện nghi vừa hợp phong thủy nhà đẹp vừa tạo được không gian ấm cúng.

Thiết Kế Kiến Trúc Nhà Phố Tại Hoài Đức
Mặt bằng tầng 2 mẫu thiết kế kiến trúc nhà phố 5 tầng hiện đại này được kts noithatMbhome.vn thiết kế 1 phòng ngủ rộng có đầy đủ nhu cầu sinh hoạt cho hai vợ chồng như giương ngủ, kệ tivi, bàn làm việc, phòng tắm và wc được thiết kế chung trong phòng ngăn cách. Phòng sinh hoạt chung được kiến trúc sư thiết kế mang chức năng tiếp nối giao thông các thành viên trong gia đình xum họp.

Phối cảnh 3D Mặt bằng tầng 3 – Thiết Kế Kiến Trúc Nhà Phố Tại Hoài Đức
Bản vẽ thiết kế kiến trúc nhà phố hiện đại được kts lên mặt bằng tầng 3 với công năng hai phòng ngủ khép kín khá rộng được các kiến trúc sư bố trí kết nối với cầu thang trung tâm.

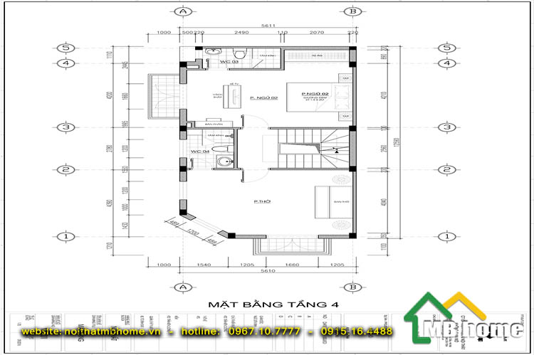
Thiết Kế Kiến Trúc Nhà Phố Tại Hoài Đức - Phối cảnh 3D Mặt bằng tầng 4
Trên bản vẽ mặt bằng tầng 4 của thiết kế kiến trúc nhà ống 5 tầng là 1 phòng ngủ master khép kín được các kiến trúc sư noithatMbhome.vn thiết kế cầu thang nằm gữa trung tâm ngăn cách với phòng thờ tạo không gian ấm cũng thanh thoát.

Phối cảnh 3D Mặt bằng tầng 5 – Thiết Kế Kiến Trúc Nhà Tại Hoài Đức
LĨNH VỰC HOẠT ĐỘNG CHÍNH CỦA NỘI THẤT MBHOME:
Chúng tôi cam kết 100% chất lượng sản phẩm đạt theo yêu cầu của khách hàng.
NỘI THẤT MBHOME - MANG MAY MẮN, BÌNH AN ĐẾN NGÔI NHÀ CỦA BẠN
Email: mbhome.vn@gmail.com
Website: noithatmbhome.com - hoanthiennoithattrongoi.com

Sản phẩm liên quan
So sánh hai căn phòng ngủ tối giản và sang trọng đều mang màu sắc cá tính riêng biệt
Các căn phòng ngủ thiết kế hiện đại, ấm cúng được nhiều gia chủ yêu thích
Những căn phòng bếp hiện đại tại chung cư có diện tích nhỏ hẹp
Tham khảo các mẫu thiết kế phòng ngủ độc và lạ trong diện tích thoải mái
Khám phá 3 mẫu thiết kế căn phòng ngủ với diện tích nhỏ hẹp
Thiết kế nội thất phòng khách và phòng ngủ với chất liệu gỗ nâu đậm chủ đạo
Tham khảo hai căn phòng ngủ người lớn thiết kế tối giản, hiện đại
Bất ngờ với những bản thiết kế phòng ngủ các bé độc và lạ
Khám phá ba căn phòng ngủ tone trắng - nâu gỗ tinh tế
Tìm hiểu hai căn phòng ngủ sang trọng và tinh tế khiến ai cũng muốn sở hữu
Những bản thiết kế phòng ngủ cho trẻ với tone màu nhẹ nhàng
3 Bản thiết kế phòng ngủ sang trọng và sáng bừng sức sống
Ấn tượng với bản thiết kế biệt thự với phòng ngủ gần gũi với thiên nhiên ngay sát biển
Thiết kế trang trí không gian căn phòng khách hiện đại, sang trọng với đường phào chỉ
Trang trí không gian căn phòng khách với những họa tiết độc - lạ
Ba bản thiết kế trang trí không gian phòng khách với khung gỗ gắn tường
Tổng hợp các mẫu thiết kế quầy bar phòng bếp ăn tiện lợi và sang trọng
Tổng hợp các thiết kế không gian phòng bếp tối giản mà vẫn hiện đại với tone màu trắng - đen làm chủ đạo
Khám phá ngay những bản thiết kế nội thất phòng khách hiện đại với mẫu ghế sofa dáng chữ L
4 bản thiết kế nội thất phòng khách mang phong cách tân cổ điển thu hút mọi ánh nhìn
Nội thất phòng bếp hiện đại theo phong cách Châu Âu
Phòng ngủ lãng mạn dành cho mùa thu
Những mẫu thiết kế nội thất phòng bếp hiện đại trẻ trung
Tự làm bàn trà bằng gỗ ghép thanh siêu đẹp
Những mẫu nội thất phòng khách hiện đại trẻ trung
Phòng ngủ đẹp hiện đại với đồ gỗ nội thất
Thiết kế nội thất phòng khách chung cư với gam mầu trắng
Thiết kế nội thất chung cư gam mầu trầm hiện đại
Thiết kế nội thất ban công đẹp hút hồn
Nội thất phòng ngủ hiện đại cho người độc thân