Khi nhắc tới các căn biệt thự thì chúng ta không thể không nghĩ tới phong cách của các khu nghỉ dưỡng vô cùng thoải mái và yên bình. Nhưng căn biệt thự của bạn đã có đầy đủ nội thất cũng như có một cách bài trí đẹp đẽ phù hợp với một căn biệt thự đúng nghĩa chưa? Hãy yên tâm nhé! Khi đến với MB Home thì bạn chỉ có việc nói lên nhu cầu của mình, việc còn lại để chúng tôi lo!

Căn biệt thự của chị Nga mang phong cách thoải mái, yên bình, dễ chịu và đặc biệt là gần gũi với thiên nhiên. Chúng ta hãy cùng tham khảo nhé!


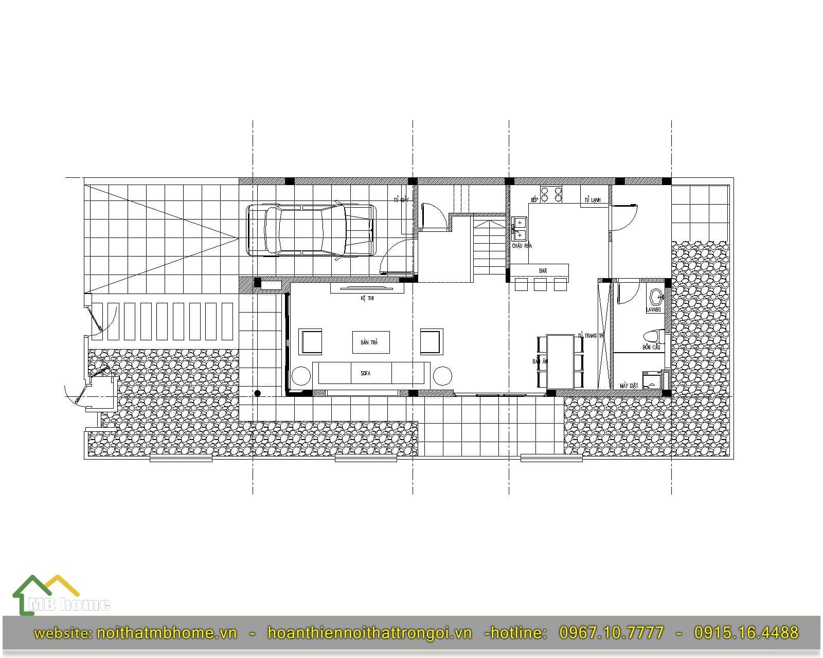
Đáp ứng theo đúng nhu cầu của gia chủ là phòng khách phải vừa tao nhã mà gần gũi với thiên nhiên, chúng tôi đã lựa chọn cho căn phòng khách các nội thất làm bằng gỗ như bộ bàn ghế sofa, tủ kệ bày ti vi,…

Để thêm phần sang trọng thì sàn nhà sẽ được lát đá vân đá với tông màu vàng nhã nhặn giúp cho không gian phòng khách sáng sủa hơn. Kết hợp thêm bộ rèm cửa với tông màu xám ghi sẽ khiến căn phòng đi theo hướng hiện đại mà lại đầy đủ tiện nghi vô cùng.

Tại khu vực nấu ăn, chúng tôi muốn giữ được sự ấm cúng cũng như sang trọng mà vẫn đầy đủ tiện nghi, MB Home chúng tôi đã thiết kế cho căn phòng một tủ bếp chữ U bằng gỗ và được phối hai màu quen thuộc là trắng và nâu gỗ.

Và để căn phòng trở nên gần gũi và ấm áp hơn thì phần tường trong khu vực nấu nướng và dọn dẹp của căn bếp được ốp đá màu vàng.

Với một căn bếp đẹp thì việc sắp xếp bàn ăn là vô cùng cần thiết, nó không chỉ phục vụ nhu cầu của gia chủ mà cũng như một món đồ trang trí. Để tương đồng với khu vực nấu nướng, chúng ta lựa chọn bộ bàn ăn cùng màu với thiết kế hiện đại. Đằng sau bàn ăn có thể để thêm một tủ kệ to để trưng bày rượu cũng như có những ngăn kéo tiện lợi.

Có thể bạn quan tâm
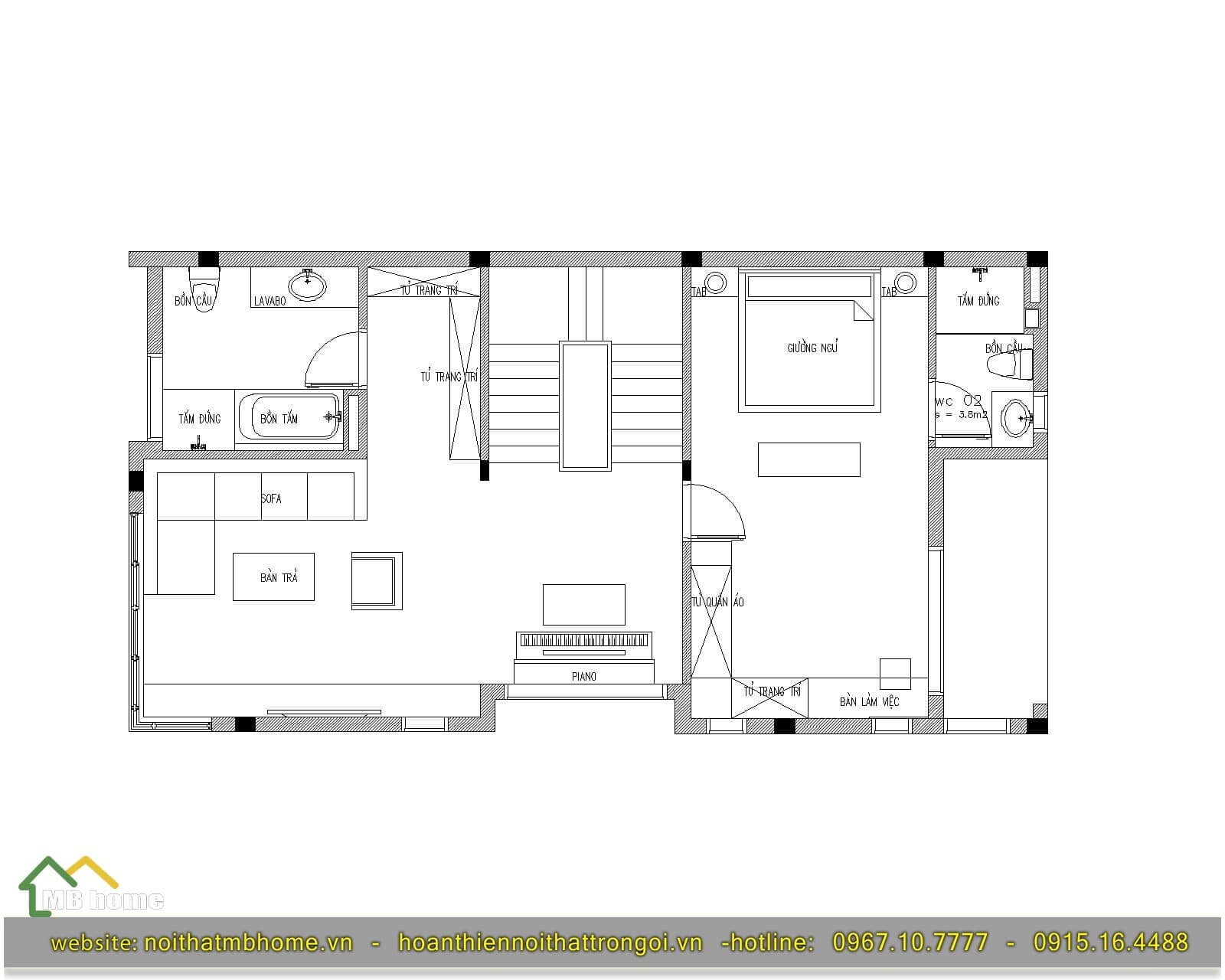
Theo như bản thiết kế mặt bằng của căn biệt thự, căn biệt thự của chị Nga được thiết kế thêm một phòng khách nữa trên tầng, chủ yếu là để cho các thành viên trong gia đình sinh hoạt và dành thời gian với nhau.

Vẫn là theo nhu cầu gần gũi với thiên nhiên, thoải mái mà lại tinh tế nhã nhặn, chúng ta nên lựa chọn cho căn phòng gam màu trung tính kết hợp với một màu nổi bật làm điểm nhấn.

Nội thất của căn phòng cũng sẽ có thiết kế và gam màu trầm ấm của gỗ cũng như rèm và thảm với tông màu xám ghi đơn giản.

Với những gia đình yêu thích nghệ thuật thì chắc hẳn sẽ dành riêng một không gian lí tưởng để trưng bày tranh ảnh cũng như một chiếc đàn piano.

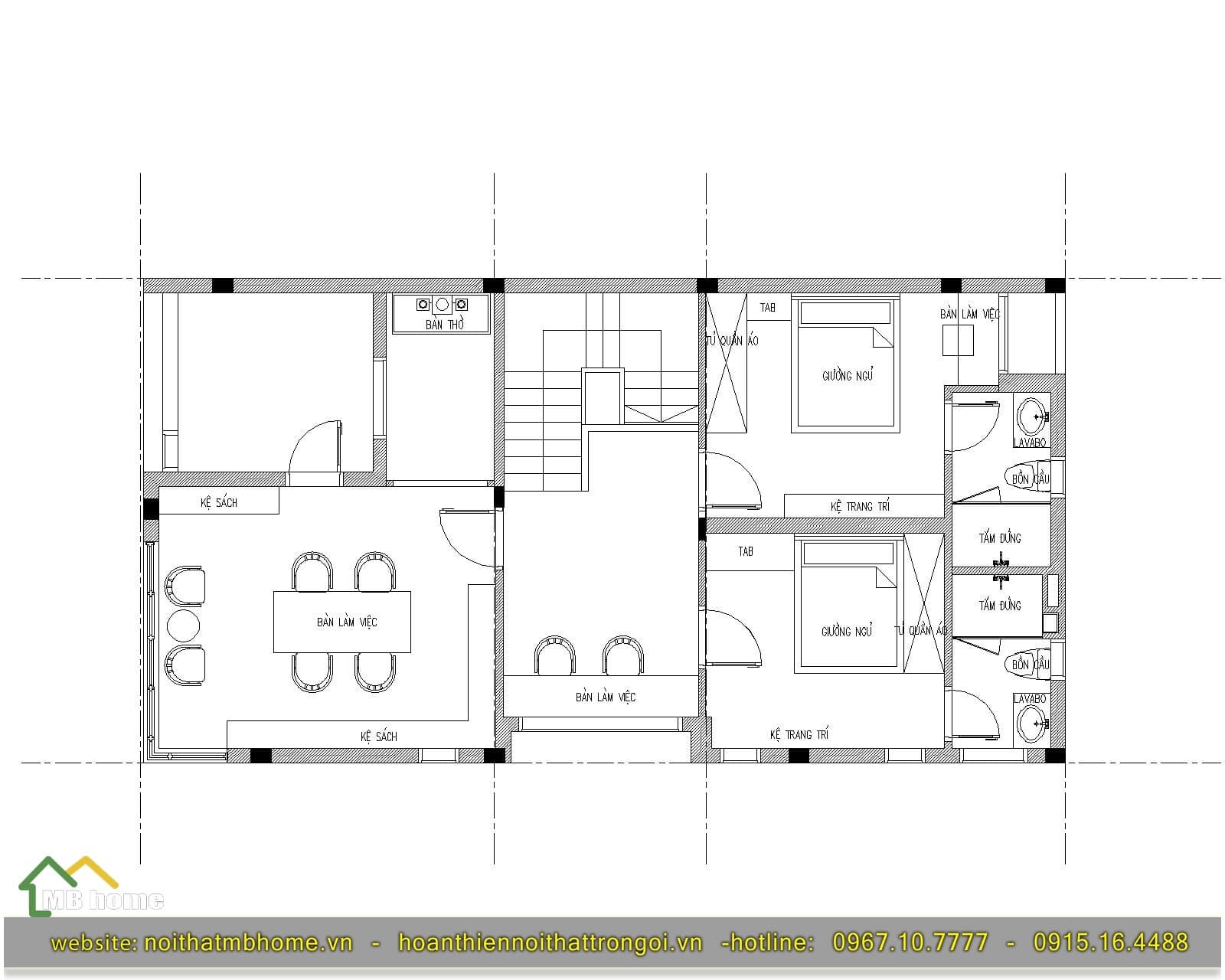
Một không gian chung nữa cho việc học tập và làm việc của cả gia đình nên MB Home ưu tiên với những thiết kế gọn gàng, đơn giản mà lại khoa học.



Đến với căn phòng ngủ của vợ chồng chị Nga, chúng ta có thể thấy sự thoải mái và thư giãn vì chúng tôi đã lựa chọn nột thất bằng những gam màu nhã nhặn, ấm cúng.

Căn phòng được thiết kế khu vực ban công nhỏ nhắn nhưng có thể đón nhận ánh nắng mặt trời cùng bầu không khí trong lành giúp cho cho gia chủ có thêm được động lực và cảm hứng làm việc tốt hơn. Đồng thời chúng tôi đã đặt bàn phấn và tủ quần áo nối liền với ban công đó nhằm mục đích tận dụng tất cả các ánh sáng của thiên nhiên vào căn phòng.

Phòng ngủ cho các bé có lẽ không hề đơn giản khi phải làm theo sở thích của các bé, nên gia đình chị Nga đã dành ra hai căn phòng để thiết kế theo ý thích của các bé nhỏ.

Một căn phòng thì nhã nhặn tinh tế nhưng vẫn cực kì trẻ trung năng động khi sử dụng nội thất với tông màu gỗ sáng và nhã nhặn. Để làm điểm nhấn đặc biệt cho căn phòng, chúng tôi đã thiết kế cho căn phòng những bức tranh được vẽ lên tường vô cùng tỉ mỉ và đẹp mắt.


Có lẽ bé gái nào cũng sẽ đặc biệt thích có một căn phòng riêng của mình toàn màu hồng. Vì hiểu tâm lý của các bé, MB Home đã thiết kế nên một căn phòng có thể đáp ứng đúng theo nhu cầu và sở thích của các bé.

Một không gian vô cùng quan trọng để làm nên một căn biệt thự hiện đại và đầy đủ tiện ích chính là phòng vệ sinh. Vì là một người thích những không gian gần gũi với thiên nhiên nên chúng tôi đã lựa chọn cho gia đình chị Nga nội thất dành cho nhà vệ sinh có tông màu nhẹ nhàng như đá và gỗ với những thiết kế đơn giản mà độc đáo.



MB Home luôn mang đến cho bạn một không gian mới mẻ, màu sắc và đậm chất phong cách cá tính riêng của mình. Chúng tôi luôn cẩn thận, tỉ mỉ và chỉnh chu từng chi tiết công đoạn một để có thể mang đến cho khách hàng của mình một mái ấm đẹp và hoàn hảo nhất có thể. Đảm bảo rằng những thiết kế và thi công sẽ không bao giờ khiến bạn cảm thấy thất vọng, thậm chí còn làm gia chủ cảm thấy ấn tượng và tự hào về căn nhà của mình. Vậy còn bạn thì sao? Còn chần chừ gì nữa, liên hệ sớm với chúng tôi để được tư vấn và giải đáp mọi thắc mắc hoàn toàn miễn phí nhé!
Hãy nhấc máy và gọi cho chúng tôi theo Hotline: 0967.10.7777 - 0915.16.4488 khi bạn có nhu cầu để được phục vụ một cách chuyên nghiệp và tốt nhất!
Xem thêm về MB Home:
LĨNH VỰC HOẠT ĐỘNG CHÍNH CỦA NỘI THẤT MBHOME:
Chúng tôi cam kết 100% chất lượng sản phẩm đạt theo yêu cầu của khách hàng.
NỘI THẤT MBHOME - MANG MAY MẮN, BÌNH AN ĐẾN NGÔI NHÀ CỦA BẠN
Email: mbhome.vn@gmail.com - Website: http://www.noithatmbhome.com/
Sản phẩm liên quan
Thiết kế nội thất showroom bán hàng kết hợp văn phòng tại Vinhomes Ocean Park 2
Mẫu thiết kế nội thất chung cư cao cấp Hinode Minh Khai hiện đại, sang trọng.
Mẫu thiết kế nội thất chung cư cao cấp Lạc Hồng Lotus 2 căn 2 phòng ngủ
Mẫu thiết kế nội thất chung cư cao cấp King Palace Nguyễn Trãi căn 2 phòng ngủ
Mẫu thiết kế chung cư Housinco Premium căn 2 phòng ngủ
Mẫu Thiết Kế Nội Thất Căn 2 Phòng Ngủ Chung Cư Luxury Park View Cầu Giấy
Thiết Kế Nội Thất Biệt Thự Mr. Tuấn - Gamuda
Thiết Kế Nội Thất Chung Cư Bán Cổ Điển Tại Hà Nội
Thiết kế nội thất Nhà Anh Nam Đông Anh
Thiết Kế Nội Thất Nhà Ống Cô Yến - Dịch Vọng - Cầu Giấy
Thiết Kế Nội Thất Chung Cư 118 Hoàng Quốc Việt
Thiết kế nội thất Biệt thự VinHome Anh Cường
Thi công cải tạo trọn gói chung cư chị Thơm Việt Hưng
Thiết Kế Nội Thất Căn Hộ Anh Vinh Tại Chung Cư Intracom
Thiết kế thi công nội thất chung cư Chị Thơm Việt Hưng
Thiết Kế Nội Thất Căn Hộ Anh Hùng - Xã Đàn
Thiết Kế Nội Thất, Ngoại Thất Biệt Thự Song Lập GAMUDA
Tổng Hợp Mẫu Thiết Kế Nội Thất Phòng Ngủ Hiện Đại
Thiết Kế Nội Thất Biệt Thự Phong Cách Á Đông Kết Hợp Hiện Đại Siêu Đẹp
Tối Thiểu Chi Phí Với Mẫu Thiết Kế Chung Cư Đơn Giản, Tiện Nghi
Không Gian Sống Tiện Nghi Với Mẫu Thiết Kế Nội Thất Chung Cư 2 Phòng Ngủ
Thiết Kế Nội Thất Chung Cư Việt Hưng - Long Biên
Thiết Kế Nội Thất Chung Cư 2 Phòng Ngủ Tại Hà Nội
Thiết Kế Nội Thất Chung Cư Thanh Hà - Hà Đông 70m2
Nội Thất Phòng Bếp Đẹp, Sang Trọng
Thiết Kế Nội Thất Phòng Ngủ Nổi Bật 2020
Mẫu thiết kế nội thất chung cư cao cấp tại Hoàng Thành Tower
Thiết kế tiệm spa phong cách sang trọng
Thiết kế nội thất spa đẹp sang trọng
Bản thiết kế ngoại thất và nội thất đẹp như tranh vẽ cho biệt thự tại Gamuda
Ngỡ ngàng trước thiết kế nội thất nhà lô độc đáo tại Ninh Bình
Thiết kế trọn gói ngoại thất, nội thất biệt thự tại Bắc Giang
Thiết kế và thi công showroom thời trang diện tích hẹp
Thiết kế thi công trọn gói văn phòng Công ty Sông Đà
Nội thất căn Penthouse 3 phòng ngủ ở Hà Đông
Thích thú với thiết kế nhà lô phố ấn tượng tại Hòa Bình
Nội thất hoàn hảo cho căn nhà lô phố tại Hòa Bình
Kiểu thiết kế biệt thự hiện đại 3 tầng có cầu thang ngoài
Thiết kế nội thất chung cư tối ưu diện tích
Kiểu mẫu căn biệt thự trẻ trung, hiện đại tại Hòa Bình
Thiết kế nội thất căn biệt thự cao cấp - Hòa Bình
Nội thất biệt thự 3 tầng đẳng cấp tại Hòa Bình
Thiết kế chung cư thông minh với diện tích nhỏ hẹp
Thiết kế phòng ngủ và phòng làm việc tinh tế
Bản thiết kế căn biệt thự sang trọng của anh Hoàn
Thiết kế nội thất văn phòng làm việc - Công ty Sông Đà
Thiết kế phòng karaoke theo phong cách hiện đại
Mẫu thiết kế biệt thự hiện đại tiện nghi - Anh Hà
Bản thiết kế căn chung cư hiện đại tại Vinhome Ocean Park Gia Lâm - Chị Thảo